01 Descrição do Produto
O Sistema de Rastreamento Solar de Eixo Único Linked Horizon Série S foi projetado para maximizar a produção de energia, alinhando continuamente os painéis solares com a trajetória do sol ao longo do dia. Projetado para usinas solares de grande porte e instalações comerciais, este sistema combina alta capacidade, rastreamento inteligente e construção robusta para oferecer desempenho superior em diversos terrenos e condições climáticas.
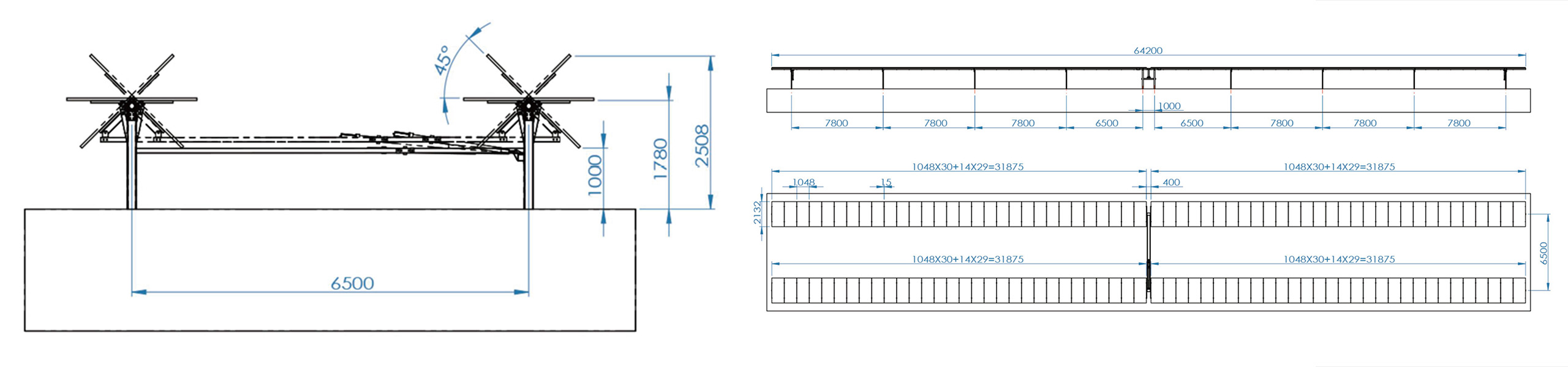
Com um design inovador interligado, cada dois rastreadores suportam até 120 módulos (quatro strings), otimizando a utilização do espaço e reduzindo os custos de equilíbrio do sistema. O rastreador é compatível com módulos solares de células de 182 mm/210 mm e opera eficientemente em configurações de sistema de 1000 V/1500 V. Sua tecnologia de rastreamento inteligente ajusta o ângulo de inclinação em uma faixa de ±50° com base em dados meteorológicos e de terreno em tempo real, garantindo a coleta ideal de energia.
Construído para suportar ambientes extremos, o sistema incorpora amortecedores para minimizar a ressonância e aumentar a estabilidade, enquanto seu design estrutural exclusivo e rigorosos testes em túnel de vento permitem que ele suporte ventos de até 45 m/s. Construído em aço galvanizado a quente ou revestido com Zn-Al-Mg (espessura média do revestimento ≥ 65 μm), oferece resistência superior à corrosão e durabilidade a longo prazo. O sistema suporta diversos tipos de fundação, incluindo fundações de concreto armado (PHC), fundidas no local e estacas de aço, proporcionando flexibilidade para diversos locais de projeto.

02 Diagrama esquemático do acessório

03 Componentes do Produto

04 Parâmetros de Engenharia Essencial
| Detalhes dos parâmetros | |
| Tecnologia de rastreamento | Tecnologia de rastreamento |
| Tensão do sistema | 1000 V/1500 V |
| Alcance de rastreamento | ±50° |
| Velocidade do vento de trabalho | 18 m/s (personalizável) |
| Velocidade máxima do vento | 45 m/s (ASCE7-10) |
| Velocidade máxima do vento | <120 módulos (personalizáveis) |
| Materiais Principais | Aço galvanizado a quente Q235B/Q355B, revestido com Zn-Al-Mg |
| Espessura média do revestimento | ≥65 mícrons |
| Sistema de acionamento | Atuador Linear |
| Tipo de fundação | PHC / Estaca moldada no local / Estaca de aço |
05 Cenários de Aplicação Industrial
✔ Desertos e terras marginais: Sistemas aplicáveis: Sistemas de rastreamento de eixo único e duplo
✔ Declives e terrenos ondulados: Sistemas aplicáveis: Sistemas de eixo único inclinado/eixo duplo adaptativo
✔ Fornecimento de energia fotovoltaica e comunitária em telhados: Sistemas aplicáveis: Sistemas leves de eixo único plano/eixo duplo de pequeno porte
06 Serviços técnicos profissionais
▶ Projeto de esquema e análise estrutural:
Forneça relatórios personalizados de cálculo de carga (incluindo análise de carga de vento/carga de neve/força sísmica).
▶ Suporte de exploração no local:
Os engenheiros realizam investigações no local das condições geológicas (capacidade de suporte do solo/declive/ambiente corrosivo).
▶ Treinamento e orientação de instalação:
Forneça vídeos de instalação padronizados, manuais de operação e orientação técnica no local para garantir zero erro na construção.
07 Sistema de verificação técnica
Forneça vídeos de instalação padronizados, manuais de operação e orientação técnica no local para garantir zero erro na construção.
07 Sistema de verificação técnica
▶ Testes ambientais extremos
• Passa o impacto de baixa temperatura a -40℃
• Corrosão por névoa salina (mais de 3.000 horas)
• Testes extremos, como simulação de furacão de 60 m/s.
▶ Certificação de terceiros
• Possuímos certificados de pressão do vento, pressão da neve, resistência sísmica e certificação de materiais emitidos pela TUV, SGS e outras instituições para garantir a conformidade de projetos globais.
08 Pacotes e Envio
Embalagem padrão internacional; As mercadorias são despachadas dos portos de Xangai, Ningbo, Tianjin, Xiamen e Shenzhen, na China.

09 Projeto Caso


Deixe um recado
Digitalizar para Wechat :